O A E U, Grubenstrasse 29,
8045 Zürich, info@oaeu.ch, +41 (0)44 515 92 10
12.03.2026: Vortrag Frühstück+, Kunstuniversität Linz.
26.02.2026: Laura ist zu Gast beim Studio von CURA am KIT. Danke lieber Otto und lieber Marc für die Einladung.
17.12.2025: Laura ist zu Gast beim Studio Foundations an der ETH. Danke Atelier Brückner und Atelier Ugolini für die Einladung.
03.12.2025 Wir freuen uns über den 1.Rang/ 1.Preis beim selektiven Wettbewerb Umbau und Sanierung Werkhof Allschwil.

14.10.2025 Wir freuen uns über den 1.Rang/ 1.Preis beim offenen Projektwettbewerb Wartenbergstrasse 47 in Pratteln.

30.06.2025: Zu Gast beim FYRMA Podcast. Schön war`s.
04.06.2025: Wir erreichen beim Studienauftrag Dozza Areal in Küsnacht die Überarbeitungsrunde. Leider konnten wie diese nicht für uns entscheiden. Wir gratulieren Studio Sintzel zum Erfolg.

31.10.2024: Wir freuen uns über den 1.Preis beim offenen Projektwettbewerb Umbau und Erweiterung Freizeitzentrum Riehen

6.09.2024: Unser Wettbewerbsbeitrag Triemli wird in der Ausstellung Wettbewerbe Architektur und Landschaft Stadt und Kanton Zürich 2022-2024 im ZAZ BELLERIVE Zentrum für Architektur Zürich gezeigt. 06.09.24 - 8.12.24

11.06.2024: AU:lectures - Vortrag in Siegen. Es war uns eine Freude!

06.05.2024: Kontextur Podcast online: Young Office Talk – when OAEU meets etal.

13.03.2024: Wir freuen uns über den 4. Preis beim selektiven Wettbewerb Siedlung Felsenrain in Zürich.

12.10.2023: Wir sind Teil der Ausstellung "Wir sind die jungen Büros" in Hamburg.
21.09.2023: Wir freuen uns auf die Diskussion in Schaffhausen.

21.08.2023: Bänziger Hug haben das Erscheinungsbild und diese Website für OAEU gestaltet und programmiert.
Grossen Dank an Samuel und Olivier!

O A E U Office for Architecture Europe
Architektur betrifft uns alle. In der gestalteten Umwelt finden die Geschichten des Lebens statt. Unsere Entwürfe entstehen aus einer Sammlung von Beobachtungen des Alltäglichen. Mit grosser Empathie gegenüber den Nutzer:innen und dem Ort versucht OAEU Raum für kommende Erzählungen in kleinen und grossen Massstäben zu entwerfen. Die Herausforderungen der Zeit, wie Klimakrise, der Umgang mit Bestandsbauten oder der Mangel an bezahlbaren Wohnraum sind von zentraler Bedeutung in unserer Arbeit und zwingen uns einen eigenen architektonischen Ausdruck zu finden.
Anabell Sophie Fritsches (*1996)
Architektin MSc. ETH
Anabell Fritsches studierte an der ETH Zürich. Sie war Hilfsassistentin bei den Professuren von Andrea Deplazes, Markus Peter und Annette Spiro. Sie machte Praktikum bei Penzisbettini und Esch Sintzel und arbeitete 2022-2026 bei Studio Noun. Seit März 2026 ist Anabell Teil von OAEU und übernimmt die Projektleitung für das Projekt Wartenbergstrasse in Pratteln.
Laura Stock (*1991)
Architektin MSc. TU SIA
Laura Stock studierte an der RWTH Aachen, dem Polytechnikum Mailand und der TU Darmstadt. Sie arbeitete bei der ARGE Dorschner Kahl Architekten/ Meier Unger Architekten in Leipzig, bei Gmür& Geschwentner Architekten in Zürich sowie bei Edelaar Mosayebi Inderbitzin Architekt:innen in Zürich. Von 2021-2023 war sie wissenschaftliche Mitarbeiterin an der TU Kaiserslautern bei Vertretungsprofessorin Lena Unger am Lehrstuhl Stadt und Architektur und von 2023-2025 bei Professor Johannes Modersohn am Lehrstuhl Baukonstruktion und Entwerfen. Seit 2021 bearbeitet sie eigene Projekte und gründete zusammen mit Johannes Walterbusch 2022 das Architekturbüro OAEU in Zürich.
Johannes Theodor Walterbusch (*1989)
Architekt MSc. TU
Johannes Theodor Walterbusch studierte an der RWTH Aachen und der TU Darmstadt, wo er sein Studium mit Auszeichnung abschloss. Er arbeitete bei der ARGE Dorschner Kahl Architekten/ Meier Unger Architekten in Leipzig und bei Loeliger Strub Architektur in Zürich. Seit 2021 ist er wissenschaftlicher Mitarbeiter an der Architekturwerkstatt in St. Gallen. Seit 2021 bearbeitet er eigene Projekte und gründete zusammen mit Laura Stock 2022 das Architekturbüro OAEU in Zürich.
Konzept, Grafik und Code
Samuel Bänziger und Olivier Hug
Bänziger Hug
OAEU ArchitektInnen GmbH
CHE-176.150.187
Vortrag, Frühstück+ Kunstuniversität Linz, 12.03.2026
Gastkritik, Gastprofessur CURA, KIT, 26.02.2026
Gastkritik, Studio Foundation ETH 17.12.2025, Atelier Brückner und Atelier Ugolini
Pratteln: Hochparterre Wettbewerbe 25/05, Christina Leibundgut; Einfach und Vorbildlich
Podcast, FYRMA 021
Landauer: Atelierbesuch von Hochparterre Wettbewerb 25/01, Ivo Bösch; In der Dreizimmerwohnung
Kleiner Pfad: Bauwelt 23.2024, Olivier Meystre; Die Muttersprache der Architektur
Triemli: Hochparterre Wettbewerbe 24/04; Sonderausgabe Erste Ränge in Zürich 2022-2024
Triemli: Wettbewerbe Architektur und Landschaft Stadt und Kanton Zürich 2022-2024 im ZAZ BELLERIVE Zentrum für Architektur, 6.09.24-8.12.24
Vortrag, AU:lectures im Stadt- und Regionallabor Siegen, 11.06.2024
Vortrag und Diskussion, Schaffhauser Architekturforum, 21.09.2023: Alternativen zum Abriss – weiternutzen und weiterbauen
Ausstellung 23/10, "Wir sind die jungen Büros" in Hamburg.
Interview, Magazin Blaupause Ausgabe 1
Interview, Kontextur 23/08
Heidi Abel: TEC21 23/20, Andrea Wiegelmann; Wohnsiedlung Heidi Abel
Triemli: Hochparterre Wettbewerbe 23/01, Casper Schärer; Comeback der Architektur
Boppartshof: Hochparterre Wettbewerbe 22/03, Volker Bienert; Vom Verschwinden der Ränder
Walkeweg: Hochparterre Wettbewerbe 22/02, Phillipe Jorisch; Räumlich reichhaltig
Zürich
2026
Projektwettbewerb im selektiven Verfahren
Stiftung PWG
021 Schürgistrasse
Allschwil
2025
Projektwettbewerb im selektiven Verfahren, 1.Rang/ 1.Preis
Gemeinde Allschwil
Conrad Kersting
Glaser Baupartner AG
A. Aegerter & Dr. O. Bosshardt
A. Aegerter & Dr. O. Bosshardt
Durable Planung und Beratung
Durable Planung und Beratung
AIVA
THE SHOW MUST GO ON
Umbau und Sanierung Werkhof Allschwil
Pratteln
2025
Projektwettbewerb im offenen Verfahren, 1.Rang / 1.Preis
GEWONA NORD-WEST
Lindenstrasse
"Alles in allem handelt es sich beim Projekt «Lindenstrasse» um einen ungemein
feinfühligen Vorschlag, der auf vielen Ebenen durch seine Angemessenheit
besticht. Bestandsbau und Garten bleiben in ihrer identitätsstiftenden Wirkung
erhalten und werden neu für viele Menschen erlebbar. Das neue Programm fügt
sich ruhig und unaufgeregt in die örtliche Bebauungsstruktur ein und schafft so
ein stimmiges Ensemble für gemeinschaftliches (Alters-) Wohnen in Pratteln." aus dem Jurybericht
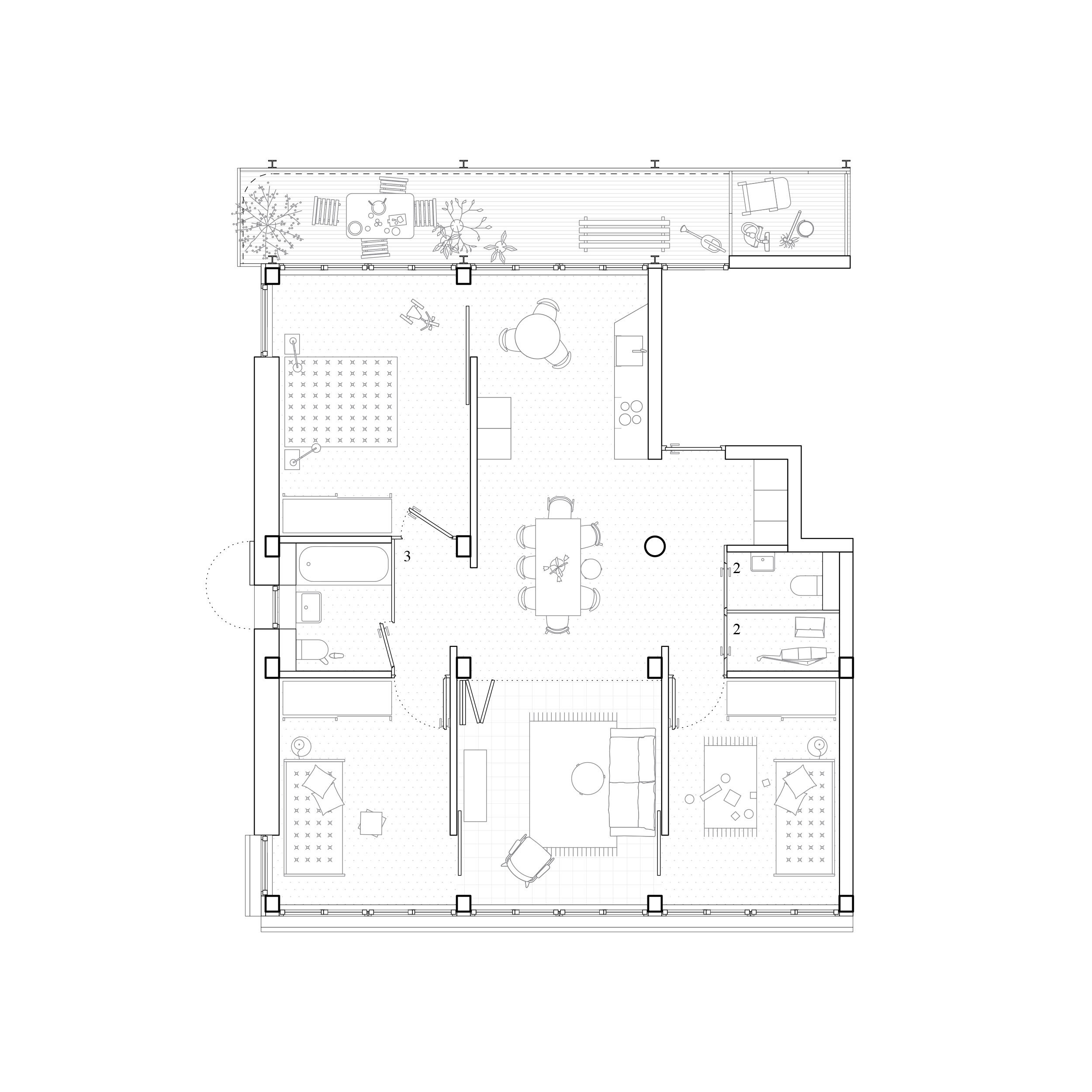
Küsnacht ZH
2024-2025
anonymer Studienauftag, nicht anonyme Überarbeitung
MGZ
C O M O
Heute verbirgt sich zwischen der südlichen Seestrasse und der nördlichen Bahnlinie ein wundervoller, fast geheimnisvoller Ort. Ein wertiges Haus in der Mitte der Parzelle zoniert diesen in einen vorderen Teil, in dem gearbeitet wird und den verwunschenen Garten im hinteren Bereich. Seitlich schützt ein eingewachsener Grünsaum das Grundstück vor der heterogenen Nachbarbebauung.
Das Projekt COMO entwickelt aus den vorgefundenen Elementen und Atmosphären ein neues Ensemble.
Das Bestandshaus und ein möglichst hoher Anteil der Bäume bleibt erhalten. Ergänzt werden diese mit vier einfachen Holzbauten: das Seehaus, das Längshaus, das Atelierhaus und das Gleishaus. Die zulässige Baumasse wird ausgenutzt und 50 neue Wohnungen enstehen. Die Konstellation der Gebäude bildet einen mehrdeutigen und offenen Hof aus. Die Privatsphäre nimmt analog zur heutigen Situation Richtung Norden zu.
Das Seehaus schützt vor Strassenlärm und bildet einen Filter zum öffentlichen Raum.
Im Erdgeschoss orientieren sich Gewerbeeinheiten wie ein Café und ein Blumenladen zur Freihofstrasse. Über einen Durchgang erreicht man den ruhigen Atelierhof. Ein grosser Betontisch wird Treffpunkt für alle Bewohnerinnen. Im nördlichen Bereich des Grundstückes nimmt die Vegetation zu und die heutige intime und mediterrane Atmosphäre bleibt erhalten. Die hochwertigen vorhandenen Bodenbeläge im Aussenraum werden wiederverwendet. Die geforderte Einstellhalle bettet sich in die bestehende Werkhofgrube samt Stützmauern ein und reduziert so die Aushubmenge und die Menge neuen Betons.
Riehen
2024
Projektwettbewerb im offenen Verfahren
1.Rang/ 1.Preis
Umbau und Erweiterung Freizeitzentrum, Kindergarten und Jugendhaus
Luisa Walterbusch mit Westpol Landschaftsarchitektur
Glaser Baupartner AG
Pirmin Jung Schweiz AG
Pirmin Jung Schweiz AG
Pirmin Jung Schweiz AG
RMG Gebäudetechnik GmbH
HeiVi AG
EL-TECH Engineering AG
Vaplan GmbH
Ryser und Partner AG
Longchamp
Die heutige Setzung bleibt erhalten. Die drei Hauptgebäude entlang des Bluttrainweges bilden das Rückgrat für den Park im Süden. Der spontane Wechsel von innen nach aussen und umgekehrt wird von den Nutzer:innen als ein wesentliches Merkmal des Betriebs beschrieben. Die Projektverfasser:innen nehmen dies zum Anlass, daraus das zentrale Narrativ des Entwurfes zu entwickeln. Zum Ausdruck kommt dies insbesondere durch den Umbau der Freizeitanlage, welche eine neue Erscheinung erhält und sich deutlicher als bisher in Richtung des Landschaftsraumes öffnet, ohne dabei ihren identitätsstiftenden Charakter zu verlieren. Das Bild eines schwimmenden Schiffes wird in das eines tribünenhaften Gebäudes mit klarer Ausrichtung umgedeutet. Das Gebäude wirft den Anker und bekennt sich zu seiner Orientierung in Richtung Park.
Die bestehende Tragstruktur wird adaptiert. Der Hauptträger Richtung Park wird entnommen und gedreht wieder eingesetzt. Darüber hinaus wird das Gebäude um zwei Rasterfelder ergänzt. Das innere Tragsystem aus zwei "gestapelten Kisten" wird entfernt und durch eine einfach gegliederte und durchlaufende Holzstruktur ersetzt. Die Dachträger werden neu auf dieser abgestützt und sind so witterungsgeschützt für den neuen Lebenszyklus gewappnet. Die eindeutige Orientierung des Volumens zeigt sich im Innenraum. Alle öffentlichen Nutzungen öffnen sich zum Park hin, die dienenden Räume sind zur Strasse ausgerichtet, dazwischen befindet sich eine klare Erschliessungszone.
Der Kindergarten wird im ehemaligen Abwartshaus untergebracht. Das Jugendhaus wird nur leicht umgebaut und ertüchtigt. Die Qualitäten des bestehenden Freiraumes werden durch kleine und gezielte Eingriffe aufgewertet.
Winterthur
2024
Projektwettbewerb im offenen Verfahren
Erweiterung Primarschule
Stadt Winterthur
WaltGalmarini AG
DECALCOMANIA
Deutschland, Schweiz
Archiv
2015, 2023-
„Die Waldlichtung ist ein Zentrum, das zu betreten nicht immer möglich ist; vom Saum aus schaut man zu ihr hin und wenn auch vielleicht Fährten von Tieren zu sehen sind, hilft das nicht, den Schritt hinüber zu tun. Es ist ein anderes Reich, von einer Seele bewohnt und behütet. Vielleicht ruft ein Vogel und lädt ein, den Weg zu gehen, den seine Stimme anzeigt. Und man folgt ihr; dann findet man nichts, nichts ausser einem unberührten Ort, der sich in diesem einzigen Augenblick geöffnet zu haben scheint und der sich niemals wieder so darbieten wird.“
María Zambrano
Stallikon
2023
Projektwettbewerb im selektiven Verfahren
Neubau Schulhaus und Mehrzweckhalle
Gemeinde Stallikon
Dr. Patrick Ole Ohlbrock
A PRIMA VISTA
Die Schulanlage Pünten ist der Auftakt der Gemeinde Stallikon. Die beiden Neubauten mit kleinem Fussabdruck bilden mit dem bestehenden Schulhaus und dem Werkhof ein Ensemble und orientieren sich an der Masstäblichkeit des Dorfes. Die vier Gebäude gruppieren sich um einen Pausenhof, der die neue Mitte der Anlage ausbildet. Als einziges Projekt im Verfahren, schlagen wir einen autofreien Schulhof vor.
Die Mehrzweckhalle dreht sich leicht aus dem orthogonalen System und orientiert sich mit einer grossen Oberlichtlaterne in Richtung Strasse und wird so als neues erstes Haus von Stallikon präsent. Der Ortseingang erhält eine neue Identität.
Die unterschiedlichen Anforderungen und Nutzungen am Ort werden als Chance verstanden, um Synergien zu nutzen und einen reichhaltigen öffentlichen Ort für die Bewohner:innen von Stallikon zu schaffen. Die Neubauten werden in Holzbauweise erstellt, Regenwasser vor Ort versickert und ein grosses PV-Dach auf der Mehrzweckhalle erzeugt Energie. Die Skelettbauweise ermöglicht ein Weiterschreiben der Anlage in der Zukunft. Die unterschiedlichen Höhen der Aussenräume werden genutzt, um eine selbstverständliche Zonierung zu erzeugen. Die Anordnung der Klassenzimmer setzt die Logik der bestehenden Schule fort und öffnet sich zum eindrücklichen Naturraum. Der Gruppenraum kann in allen Geschossen bodentief geöffnet werden und wird im Sommer als Loggia genutzt. Ebenso ist ein Zusammenschalten mit der Garderobe möglich. Die Pergola auf dem Dach dient als Nutzungsreserve und kann im Falle eine Erweiterung ausgebaut werden.
Die Mehrzweckhalle orientiert sich zum Ortseingang. Die Dachfigur fällt mit Solardachdeckung in Richtung Süden ab. Das Oberlicht bringt blendfreies Nordlicht tief in die Halle und öffnet den Blick Richtung Uetliberg. Das Foyer nutzt Teile des ungenutzten Erdgschosses des Werkgebäudes. Diese Massnahme spart Ressourcen und schafft eine aus unserer Sicht benötige Verbindung zwischen Erdgeschoss des Werkhofes und Pausenhof. Im Sommer wird das Foyer grosszügig geöffnet und als gedeckte Pausenhalle nutzbar. Die Aufwärmküche kann auch als Schulkiosk bespielt und zum Pausenhof geöffnet werden. Die Bühne ist barrierefrei vom Umkleidetrakt erreichbar. Die Umkleiden können bei Veranstaltungen als Backstagebereich genutzt werden. Die Bühne ist höhenverstellbar. Im oberen Niveau dient sie als belichteter Mehrzweckraum und kann als Aussenbühne zum Allwetterplatz interpretiert werden.
Zürich, Seebach
2023
235 Alters- und Familienwohnungen, Pflegegruppen, Kindergarten, Gewerbe, Aufstockung Hochhaus
Projektwettbewerb im selektiven Verfahren
Stiftung SAW, SWF, GFA Zürich
4.Preis, 4.Rang
RAINBOW
Die Stiftungen SAW, SWF und GFA planen in Zürich Seebach einen Ersatzneubau für eine bestehende Siedlung aus den 1950er Jahren mit 235 Wohnungen. Die Testplanung zeigte sich skeptisch gegenüber einem (Teil-)Erhalt der Anlage, da die gewünschte Dichte nicht erreicht werden könne. Wir schlagen vor, das identitätsstiftende Hochhaus zu erhalten und aufzustocken. Durch diese Massnahme gelingt es die Wohnungsanzahl zu erreichen. Eine umlaufende Stahlkonstruktion bildet eine neue Balkonschicht aus, welche den Bestandswohnungen eine ungeahnte Grosszügigkeit verleiht. Die Stahlträger übernehmen einen Teil der Lasten der aus Holz konstruierten Aufstockung und stabilisiert darüber hinaus das Gebäude. Einfach konstruierte Holzbauten ergänzen die Siedlung und schaffen differenzierte Aussenräume, in denen sämtlicher Baumbestand erhalten bleibt.
Aarberg, Schweiz
2023
Projektwettbewerb im offenen Verfahren
Gesamtsanierung und Erweiterung Oberstufenzentrum
Gemeinde Aarberg
Timbatec
Libelle
Die Pläne von Gianpeter Gaudy sehen eine Anlage mit einzelnen Zeilenbauten vor, die in ihrer Massstäblichkeit und Ausrichtung einen natürlichen Übergang zwischen Wohnbebauung und Naturraum schafft, ohne als Barriere zu erscheinen. Die Gebäude sind gut belichtet, logisch konstruiert und in ihrer Materialität langlebig entworfen. Die orthogonale Anordnung der einzelnen Trakte bzw. Pavillons schafft stimmige Ausblicke in Richtung Natur und zwischen den einzelnen Bauten. Differenzierte Aussenräume laden zum Verweilen ein. Der Projektvorschlag greift die Konzeption der Ursprungsanlage auf und strickt diese Qualitäten der Setzung weiter. Der Verbindungsgang wird in das ursprüngliche orthogonale System rückgebaut und stellt die Wirbelsäule der neuen Anlage dar. In Teilen als gedeckter Aussenraum und in Teilen als gut belichteter Innenraum bietet er Aufenthaltsqualitäten und Rückzugsmöglichkeiten während der Schulzeit. Die Flügelbauten nehmen die Funktionen der Schulnutzung auf. Der Neubau schafft einen neuen Ankunftsplatz und wird Auftakt der Anlage. In ihm wird die neue Musikschule untergebracht, die sich so zum Quartiersplatz öffnet. Der Betontisch des Spezialtrakts wird erhalten und mit einem zweigeschossigen Aufbau ergänzt.
Zürich, Schweiz
2022
Projektwettbewerb im offenen Verfahren
3. Preis
Neubau Alterswohnungen
Stiftung Alterswohnungen der Stadt Zürich, SAW
Schmidt&Kündig Ingenieure AG
Aida
Wie kann qualitätsvolles und kostengünstiges Wohnen im Alter im heterogenen Kontext von Leutschenbach aussehen? Wir schlagen eine einfache Setzung einer Hochhauszeile mit grossem Parkgarten vor. Ein gemeinschaftliches Erdgeschoss mit Kachelöfen, Werkstätten, Fitnessräumen, Waschküchen und einer Orangerie zum Garten schafft einen lustvollen Ort der Begegnung. 110 günstige Kleinwohnungen mit einer durchlaufenden Balkonschicht reagieren auf die Bedürfnisse der älteren Bewohner:innen. Das Gebäude ist als Hybridbau konzipiert. Eingedrehte Betonwinkel stabilieren das Holzskelett und rythmitisieren den Grundriss.
Zürich, Schweiz
2022
Spekulativer Ideenwettbewerb im offenen Verfahren
ausgezeichnet mit einem von 5 Preisen
Umnutzung ehemalige Personalhäuser des Stadtspitals Triemli
S, M, L, XL
Noch vor einem Jahr war geplant, die drei ehemaligen Personalhäuser des Stadtspitals Triemli rückzubauen. Der Entscheid zum Abbruch ist umstritten. Im spekulativen Ideenwettbewerb wurden zukunftsweisende Vorschläge für die Um- und Weiternutzung der drei ehemaligen Personalhäuser gesucht. Die Triemlitürme weisen einen hohen Wert auf. In den Bestandsbauten ist viel graue Energie gespeichert. Im Szenario eines Abrisses würde ein grosser Teil des ursprünglichen Energieeinsatzes verloren gehen, was in der akuten Klimakrise nicht zu argumentieren ist. Darüber hinaus haben die Gebäude einen hohen architektonischen Wert. Sie bilden am Triemliplatz mit dem Guyer-Hochhaus und dem altem Bettenhaus des Spitals ein identitätsstiftendes Ensemble. Das Projekt S, M, L, XL überführt die robuste, logische Tragstruktur und Erscheinung der Türme in eine zeitgemässige Nutzung.
Wir hinterfragen mit unserem Beitrag aktuelle Wohnstandards: Über wieviel Quadratmeter private Wohnfläche sollen wir verfügen können? Wir geben eine systematische Antwort: 1 Person erhält 21 m2 (S); 2 Personen 55 m2 (L) etc. und realisieren diese schliesslich durch die Addition von vorfabrizierten Sanitärzellen und einer Raumschicht an den Bestand. Die Wohnungen strahlen eine selbstverständliche Bescheidenheit aus. Die Grosszügigkeit wird nicht in den privaten, sondern in den gemeinschaftlichen Räumen und im Bezug zur Stadt gesucht. Zweigeschossige Kaminräume auf jedem Stock schaffen einen Mehrwert. Die visuelle Nähe und die räumliche Anbindung zur Stadt sind die entscheidenden Qualitäten.
Zürich, Schweiz
2022
Projektwettbewerb im selektiven Verfahren
Umnutzung eines Bürogebäudes in ein Wohnhaus
Stiftung PWG
Monotti Ingenieri Consulenti SA
Bakus Buaphysik und Akustik GmbH
Vollenweider Baurealisation GmbH
mon oncle, Jacques Tati
Vokuhila
Die benachbarten Bürogebäude des SRF Dixa und Micro werden zu einem Wohnhaus für die Stiftung PWG umgenutzt.
In die robuste Struktur des Betonskeletts wurden zwei neue barrierefreie Erschliessungen integriert, die von einem zentralen Eingangsbereich erreicht werden können.
Kleine Wohnungen sind geprägt von Stützen und Bandfenstern des Bestands und erinnern an modernistische Zeiten. Farbig gestaltete Details bereichern das ehemalig etwas trist wirkende Bürogebäude.
Ein begrünter Innenhof und eine neu geschaffene Dachterrasse verbinden die beiden Gebäude und bieten den Bewohnern attraktive Freiräume. Der Abriss von 400 Quadratmetern unterirdischer Lagerflächen ermöglichte zudem die Umwandlung des südlich gelegenen Platzes von einer Asphaltbrache in ein baumbestandenes Feuchtgebiet "Schwammstadt".
Die ursprüngliche Architektursprache der Gebäude aus den 1970er Jahren ist von aussen noch erkennbar und wird nur durch die neuen textile Fallarmmarkisen in einen etwas leichteren Ausdruck transformiert.
Dortmund, Deutschland
2022
privat
Umbau Atelierwohnung
Eine Einliegerwohnung wird zum Atelier. Ein unbelichter Korridor wurde aufgehoben und mit einer bestehenden kleinen Küche zusammengelegt. Es entsteht ein neuer Aufenthaltsort mit Kaffeebar. Über eine neue grosse Öffnunung mit Schiebetür wird der Bereich mit dem grossen Atelierraum verbunden. Liebevolle Details aus den 1980er-Jahren, wie Geländer, Kunststoffhandgriffe oder Vordächer werden beim Umbau ergänzt. Ein neuer Linoleumboden und Einbauschränke vervollständigen den Entwurf.
Glattfelden, Schweiz
2022
Projektwettbewerb im offenen Verfahren
3. Preis
Erweiterung Primarschule Eichhölzli
Gemeinde Glattfelden
WaltGalmarini AG
Raumanzug GmbH
Partitur
„Eine Partitur (italienisch partitura ‚Einteilung‘; französisch partition (d’orchestre)) ist eine Aufzeichnung mehrstimmiger Musik in Notenschrift, bei der die einzelnen Stimmen übereinander angeordnet und mit senkrecht durchlaufenden Taktstrichen verbunden sind. In der Partitur sind somit alle Instrumental- und Vokalstimmen einer Komposition oder Bearbeitung erfasst. Dadurch können der Verlauf der Einzel-stimmen, ihre Koordination und die Zusammenklänge abgelesen werden – insbesondere kann der Dirigent das musikalische Geschehen auf einen Blick überschauen. Die Partitur enthält auch Hinweise zur Aufführung wie Tempo, Dynamik und Spielanweisungen.“
Unsere Partitur beschreibt die Komposition und Anordnung verschiedener Gebäude und Landschaftselemente und ihre poetische Abhängigkeit.
Wir schätzen den ländlichen Kontext der Anlage am Übergang zwischen gebauter Stadtstruktur und Naturlandschaft, die Horizontalität und den weiten Himmel. Die Qualität der bestehenden Schulhausanlage Eichhölzli wird erkannt und über ein übergeordnetes System gestärkt und erlebbar gemacht. Das bestehende Ensemble, mit Gebäude und Landschaftsfragmenten aus unterschiedlichen Zeiten wird als Potenzial gesehen und durch weitere Elemente ergänzt und neu als grosses Ganzes gedacht. Analog zu einer musikalischen Partitur entstehen langsame, weite, ruhige, schnelle, enge und dynamische Räume.
Die Schulhausanlage wird auf der nordwestlichen Parzelle mit einem zunächst zweigeschossigen Neubau, der Schule, ergänzt. Dieser bildet den Schlussstein in der orthogonal aufgebauten Bebauungsstruktur.
Auf der östlichen Parzelle und auf der im Süden gelegenen Wiese werden heimische Obstbäume in einem sich auf die Bebauungsstruktur beziehenden Raster gepflanzt. Das Raster bildet die Taktstriche und ordnet das Gesamtsystem. Zwei Neubauten, der Kindergarten und die Tagesstruktur gliedern sich in dieses System ein. Durch ihre einfache Gründung scheinen sie leicht auf der Wiese zu schweben und im Ausdruck erscheinen sie landschaftlich und erinnern an Scheunen.
Basel, Schweiz
2021–2022
Ideenwettwerb im offenen Verfahren, Studienauftrag
1. Preis, Einladung zum Studienauftrag
Neubau Primarschule
Kanton Basel Stadt
Anna Kessler
Schmidt&Kündig Ingenieure AG
Pirmin Jung Schweiz AG
Deepshi Kaushal ETH
Lippuner EMT AG
IBW Bertram Witz
You’ll never walk alone
Wir schätzen den vorgefundenen Ort sehr. Er erscheint wie eine kleine ruhige Oase, die durch die Stadtnatur geprägt ist. Die Heterogenität und Massstäblichkeit im Übergang zwischen Stadt und Land prägen die Stimmung. Wir träumen von einem in vielen Aspekten nachhaltigen Schulhaus, dass sich dieser spezifischen Atmosphäre lustvoll annimmt und in die Zukunft überführt.
Die Schule steht als Solitärbau in einem Park. Ein längliches und kompaktes Volumen mit kleinem Fussabdruck besetzt den westlichen Teil des Grundstückes und schafft in Richtung Quartier im Osten Platz für einen grosszügigen Aussenraum, der ergänzend zum Quartiersplatz einen wertvollen Beitrag für das spezifische Leben mit und in der Natur im Viertel erzeugt. Das Ensemble aus Gebäude und Park vermittelt zwischen Friedhof, Quartiersplatz und angrenzenden Zeilenbauten. Die Sporthalle füllt die durch die Schadstoffsanierung entstehende Baugrube.
Das Schulhaus reagiert mit seinen Fassaden zu den jeweiligen Seiten unterschiedlich. Zum Quartiersplatz zeigt das Schulhaus Gesicht. Mit seiner Platzfassade aus recyclierten Bauteilen trägt der Entwurf den ökologischen Gedanken mitten ins Quartier. Die Zweiteilung in Laubengang und Innenräume ist ablesbar. Ein auf den Quartiersplatz auskragendes Re-Use-Vordach verzahnt das Haus mit dem Platz. Die Ostfassade zeigt theaterhaft zum Park das Treiben auf dem Laubengang und schafft einen fliessenden Übergang zwischen Innen und Aussen.
Das Schulhaus ähnelt in seiner Struktur einem Regal. In der Konsequenz wird das Gebäude als Skelettbau in Holz ausgeführt. In Längsrichtung wird es in zwei Bereiche gegliedert: Dem gedämmten und beheizten Hauptvolumen, welches die erforderlichen Räume aufnimmt und dem Laubengang im Osten. Es kann nutzungsoffen und flexibel gefüllt werden. Durch die rigide Systemtrennung in Primär- und Sekundärstruktur kann auf mögliche Veränderungen im Lebenszyklus reagiert werden. Der Park bildet zusammen mit der «rue extérieure» eine attraktive räumliche Schnittstelle zu den benachbarten Wohnbauten und schafft über die gesamte Länge eine lebendige Adresse zum Quartier.
St.Gallen, Schweiz
2021
Projektwettbewerb im offenen Verfahren
5. Rang
Neubau Tagesbetreuung
Stadt St.Gallen
Zaunkönigin
„Das Projekt zeugt von einer hohen Fähigkeit, die Aufgaben von Architektur mit zusätzlichen Inhalten zu füllen und diese in eine frische und leichtfüssige Sprache zu verwandeln. Die Idee, dem Ort und der Gesellschaft mehr Möglichkeiten anzubieten, als das Raumprogramm einfordert, ist bemerkenswert. Das zentrale Anliegen der Autorenschaft ist, einen gemeinsamen Ort mit einem offenen Erdgeschoss für die Tagesbetreuung, die Schule und das Quartier anzubieten. Durch ein freies Erdgeschoss läuft die Topografie unter dem Baukörper durch, und die Zaunkönigin hebt sich mit den beiden Obergeschoss geschickt in die Ebene der Baumkronen. Das offene Erdgeschoss wird im Alltag zu einem Ort des Ankommens für alle Kinder. Auch wenn im ersten Moment die kontektuelle Verknüpfung mit der Umgebung vielleicht etwas vermisst wird, kann das Projekt dem Ort doch neue Bedeutung geben.“
aus dem Jurybericht
St.Margrethen, Schweiz
2018
Projektwettbewerb im offenen Verfahren
Strandbad
Gemeinde St. Margrethen
Santa Monica
Wir entwerfen ein Strandbad, das in seiner Erscheinung einen Hauch von kalifornischem Lebensgefühl nach St. Margrethen bringt.
Wir referenzieren den angrenzenden Campingplatz mit seiner zauberhaften Kleinteiligkeit, seinen provisorischen Erfindungen und angenehmer Gelassenheit. Situativ entworfene Details bringen Freude an den Ort.
Unser Weg führte immer wieder nach Leipzig. Wir machten einen Entwurf für den Wilhelm-Leuschner-Platz, bauten ein grosses Modell und stellten dies in der Galerie b2 aus. Wir diskutierten die Ideen mit den Bewohner:innen der Stadt.
In der Ausstellung Nebenbei, der Mond von Katharina Immekus durften wir 2017 den kleinen Raum gestalten.
Mailand, Italien
2017
Forschungsprojekt bei Prof. Elli Mosayebi, TU Darmstadt
Eingänge
Das Forschungsprojekt „Mailänder Eingänge“ untersucht anhand von fünf exemplarischen Beispielen Mailänder Wohnarchitektur, in der Zeit zwischen 1930 bis 1960, die Choreographie des Nachhausekommens.
Via Daniele Manin 33: Mario Asnago, Claudio Vender, 1933-34, Via Paolo Marchiondi 8: Ignazio Gardella, 1951-53, Via Gavirate 27: Angelo Mangiarotti, Bruno Morrassutti, 1956-60, Via Canova 7a: Giandomenico Belotti, 1958-1960, Via Quadronno 24: Angelo Mangiarotti, Bruno Morrassutti, 1960-62
Soweit in den folgenden Abschnitten nicht anderweitig dargestellt, werden bei Nutzung unserer Webseiten grundsätzlich keine personenbezogenen Daten erhoben, verarbeitet oder genutzt. Wir erfahren aber über den Einsatz des Webaccess-Logs bestimmte technische Informationen anhand der von Ihrem Browser übermittelten Daten (beispielsweise Browsertyp/-version, verwendetes Betriebssystem, bei uns besuchte Webseiten inkl. Verweildauer, zuvor besuchte Webseite). Diese Informationen werten wir nur zu statistischen Zwecken aus. Sie werden periodisch gelöscht.
Diese Website benutzt Google Analytics, einen Webanalysedienst der Google Inc., (1600 Amphitheatre Parkway Mountain View, CA 94043, USA; "Google"). Die Nutzung umfasst die Betriebsart "Universal Analytics". Damit ist es möglich, Daten, Sitzungen und Interaktionen über mehrere Geräte hinweg einer pseudonymen Benutzerkennung zuzuordnen und so die Aktivitäten eines Benutzers geräteübergreifend zu analysieren. Google Analytics verwendet sog. "Cookies", Textdateien, die auf Ihrem Computer gespeichert werden und die eine Analyse der Benutzung der Website durch Sie ermöglichen. Die durch den Cookie erzeugten Informationen über Ihre Benutzung der Website werden in der Regel an einen Server von Google in den USA übertragen und dort gespeichert. Sie können die Installation der Cookies durch eine entsprechende Einstellung Ihrer Browser Software verhindern; wir weisen Sie jedoch darauf hin, dass Sie in diesem Fall gegebenenfalls nicht sämtliche Funktionen dieser Website voll umfänglich nutzen können.
Ebenfalls zum Zwecke der Verbesserung unserer Webangebote setzen wir sogenannte Cookies ein. Cookies sind Text-Informations-Dateien, welche Ihr Web-Browser auf Ihrem Computer abspeichert, wenn Sie eine unserer Webseiten öffnen. Wir verwenden diese Cookie-Technologie, um unsere Webseiten auf bevorzugte Interessengebiete zuzuschneiden. Wenn Sie den Einsatz von Cookies verhindern möchten, können Sie die Annahme von Cookies in Ihrem Browser verweigern. Wie das im Einzelnen funktioniert, entnehmen Sie bitte der Anleitung Ihres Browser-Herstellers.
Personenbezogene Daten werden durch uns erfasst, wenn Sie uns diese von sich aus mitteilen, beispielsweise wenn Sie mit uns in Kontakt treten. Die uns auf diese Weise übermittelten personenbezogenen Daten werden wir nur für die direkte Kommunikation mit Ihnen verwenden. Eine Mitteilung dieser Angaben erfolgt ausdrücklich auf freiwilliger Basis und mit Ihrer Einwilligung. Soweit es sich hierbei um Angaben zu Kommunikationskanälen (beispielsweise E-Mail-Adresse, Telefonnummer) handelt, willigen Sie ausserdem ein, dass wir Sie eventuell auch über diesen Kommunikationskanal kontaktieren.
Wir haben umfangreiche technische und betriebliche Schutzvorkehrungen getroffen, um Ihre Daten vor zufälligen oder vorsätzlichen Manipulationen, Verlust, Zerstörung oder dem Zugriff unberechtigter Personen zu schützen. Unsere Sicherheitsverfahren werden regelmässig überprüft und dem technologischen Fortschritt angepasst.
Eine Übermittlung Ihrer Daten an Dritte findet nicht statt, es sei denn, wir sind gesetzlich dazu verpflichtet. Soweit externe Dienstleister mit Ihren personenbezogenen Daten in Berührung kommen, haben wir durch rechtliche, technische und organisatorische Massnahmen sowie durch regelmässige Kontrollen sichergestellt, dass diese die Vorschriften der Datenschutzgesetze einhalten.
Gerne geben wir Ihnen Auskunft darüber, ob und welche personenbezogenen Daten von Ihnen bei uns gespeichert sind und löschen diese, falls erwünscht.
Für diese Anliegen steht Ihnen unser Datenschutzbeauftragter gerne zur Verfügung unter info@oaeu.ch.
Alle Angaben unseres Internetangebotes wurden sorgfältig geprüft. Wir bemühen uns, unser Informationsangebot aktuell, inhaltlich richtig und vollständig anzubieten. Trotzdem kann das Auftreten von Fehlern nicht völlig ausgeschlossen werden, womit wir keine Garantie für Vollständigkeit, Richtigkeit und Aktualität von Informationen auch journalistisch- redaktioneller Art übernehmen können. Haftungsansprüche aus Schäden materieller oder ideeller Art, die durch die Nutzung der angebotenen Informationen verursacht wurden, sind ausgeschlossen, sofern kein nachweislich vorsätzliches oder grob fahrlässiges Verschulden vorliegt.
Der Herausgeber kann nach eigenem Ermessen und ohne Ankündigung Texte verändern oder löschen und ist nicht verpflichtet, Inhalte dieser Website zu aktualisieren. Die Benutzung bzw. der Zugang zu dieser Website geschieht auf eigene Gefahr des Besuchers. Der Herausgeber, seine Auftraggeber oder Partner sind nicht verantwortlich für Schäden, wie direkte, indirekte, zufällige, vorab konkret zu bestimmende oder Folgeschäden, die angeblich durch den Besuch dieser Website entstanden sind und übernehmen hierfür folglich keine Haftung.
Der Herausgeber übernimmt ebenfalls keine Verantwortung und Haftung für die Inhalte und die Verfügbarkeit von Webseiten Dritter, die über externe Links dieser Webseite erreichbar sind. Für den Inhalt der verlinkten Seiten sind ausschliesslich deren Betreiber verantwortlich. Der Herausgeber distanziert sich damit ausdrücklich von allen Inhalten Dritter, die möglicherweise straf- oder haftungsrechtlich relevant sind oder gegen die guten Sitten verstossen.
Unsere Webseite enthält Links zu verschiedenen Webseiten, auf die sich diese Datenschutzerklärung nicht erstreckt. Soweit mit der Nutzung der Internetseiten anderer Anbieter die Erhebung, Verarbeitung oder Nutzung personenbezogener Daten verbunden ist, beachten Sie bitte die Datenschutzhinweise dort.
Wir behalten uns das Recht vor, diese Datenschutzerklärung jederzeit unter Beachtung der geltenden Datenschutzvorschriften zu ändern.




